Face Drawing Generator

Are you looking for the best images of Face Drawing Generator? Here you are! We collected 38+ Face Drawing Generator paintings in our online museum of paintings - PaintingValley.com.

ADVERTISEMENT

Most Downloads Size Popular

Views: 5026 Images: 38 Downloads: 6 Likes: 0

Like JPG
325x473 Pichacks Symmetrical Face Generator - Face Drawing Generator

Pichacks Symmetrical...

325x473 4 0

Like JPG
1200x1200  - Face Drawing Generator

- Face Drawing Gene...

1200x1200 1 0

Like JPG
621x534 Create Face With Your Images - Face Drawing Generator

Create Face With You...

621x534 1 0

Like JPG
513x720 How To Draw Generator Rex, Step - Face Drawing Generator

How To Draw Generato...

513x720 0 0

Like JPG
600x480 How To Create A Self Portrait In A Geometric Style - Face Drawing Generator

How To Create A Self...

600x480 0 0

Like JPG
775x775 How To Draw Awesome Face, Awesome Face, Step - Face Drawing Generator

How To Draw Awesome ...

775x775 0 0

Like JPG
3200x2400 How To Draw Harry Potter Steps - Face Drawing Generator

How To Draw Harry Po...

3200x2400 0 0

Like JPG
1280x720 How To Draw The Head - Face Drawing Generator

How To Draw The Head...

1280x720 0 0

Like JPG
769x433 Lenny Face Generator Now Live - Face Drawing Generator

Lenny Face Generator...

769x433 0 0

Like JPG
1280x720 Let's Check Out Face Generator! - Face Drawing Generator

Let's Check Out Face...

1280x720 0 0

Like PNG
1640x792 Nightmare Hellface Generator Is Cutting Edge Machine Learning - Face Drawing Generator

Nightmare Hellface G...

1640x792 0 0

Like JPG
449x470 People Emotions Generator Flat Vector People Character Generator - Face Drawing Generator

People Emotions Gene...

449x470 0 0

Like JPG
507x516 Face Generator Attempts - Face Drawing Generator

Face Generator Attem...

507x516 0 0

Like JPG
400x400  - Face Drawing Generator

- Face Drawing Gene...

400x400 0 0

Like JPG
500x375 Rage Face Meme Generator - Face Drawing Generator

Rage Face Meme Gener...

500x375 0 0

Like JPG
542x679 Request A Face For Me To Draw Character Generator Amino - Face Drawing Generator

Request A Face For M...

542x679 0 0

Like JPG
600x753 Still - Face Drawing Generator

Still - Face Drawing...

600x753 0 0

Like JPG
1280x720 Turning A Drawing Into Real Life! - Face Drawing Generator

Turning A Drawing In...

1280x720 0 0

Like JPG
1527x2291 Taming The Wild - Face Drawing Generator

Taming The Wild - Fa...

1527x2291 0 0

Like JPG
800x420 This Creates Photo Realistic Faces Of People Who Don't Exist - Face Drawing Generator

This Creates Photo R...

800x420 0 0

Like JPG
288x512 Face Amino - Face Drawing Generator

Face Amino - Face Dr...

288x512 0 0

Like JPG
1920x1080 How To Draw A Face - Face Drawing Generator

How To Draw A Face -...

1920x1080 0 0

Like JPG
500x667 Zhao Lei Namja In Pose Generator, Drawings, Face Reference - Face Drawing Generator

Zhao Lei Namja In Po...

500x667 0 0

Like JPG
962x429 Draws Faces From Sketches With Nightmarish Results Daily Mail - Face Drawing Generator

Draws Faces From Ske...

962x429 0 0

Like JPG
1920x1457 Artstation - Face Drawing Generator

Artstation - Face Dr...

1920x1457 0 0

Like JPG
468x251 Best Online Tool To Draw Face Sketches Ultimate Flashface - Face Drawing Generator

Best Online Tool To ...

468x251 0 0

Like JPG
1782x2303 Blobs In Games Procedural Face Generator - Face Drawing Generator

Blobs In Games Proce...

1782x2303 0 0

Like JPG
1391x1800 Caricature Generator The Dynamic Exaggeration Of Faces - Face Drawing Generator

Caricature Generator...

1391x1800 0 0

Like JPG
1280x600 Cat Face Drawing Halloween - Face Drawing Generator

Cat Face Drawing Hal...

1280x600 0 0

Like PNG
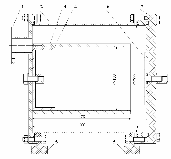
701x653 Design Of The Gas Discharge Chamber Of The High Frequency - Face Drawing Generator

Design Of The Gas Di...

701x653 0 0

Like PNG
816x407 Draw A Doodle Of A Face, And Watch This Image Generator Make It - Face Drawing Generator

Draw A Doodle Of A F...

816x407 0 0

Like PNG
745x405 Drawing Anime Girls With Deep Learning Towards Data Science - Face Drawing Generator

Drawing Anime Girls ...

745x405 0 0

Like JPG
1280x720 Drawing Faces For A Month - Face Drawing Generator

Drawing Faces For A ...

1280x720 0 0

Like JPG
409x307 Epic Face Generator - Face Drawing Generator

Epic Face Generator ...

409x307 0 0

Like JPG
236x236  - Face Drawing Generator

- Face Drawing Gene...

236x236 0 0

Like PNG
1412x576 Figure From Caricature Generator The Dynamic Exaggeration - Face Drawing Generator

Figure From Caricatu...

1412x576 0 0

Like PNG
904x450 Figure From Caricature Generator The Dynamic Exaggeration - Face Drawing Generator

Figure From Caricatu...

904x450 0 0

Like JPG
682x1024  - Face Drawing Generator

- Face Drawing Gene...

682x1024 0 0

Tags: face, generator

All rights to paintings and other images found on PaintingValley.com are owned by their respective owners (authors, artists), and the Administration of the website doesn't bear responsibility for their use. All the materials are intended for educational purposes only. If you consider that any of the materials violates your rights, and you do not want your material to be displayed on this website, please get in touch with us via "contact us" page and your copyrighted material will be immediately removed.

shutterstock

Related Images